GESUNDSCHRUMPFEN

Entwurf einer Selbstversorgerhütte zur Entschleunigung in der Natur im Zeitalter urbaner Hektik.

 

Bachelor of Arts INTERIOR ARCHITECTURE 2017

Coburg UNIVERSITY OF applied sciences and ARTS /

at the Faculty of Design + construction

bachelor's thesis CARED BY Prof. Mark Nicholas Phillips

// Architecture // Experimental Space // architectural researcher

  • Architecture // Interior Architecture // off the grid // constructions

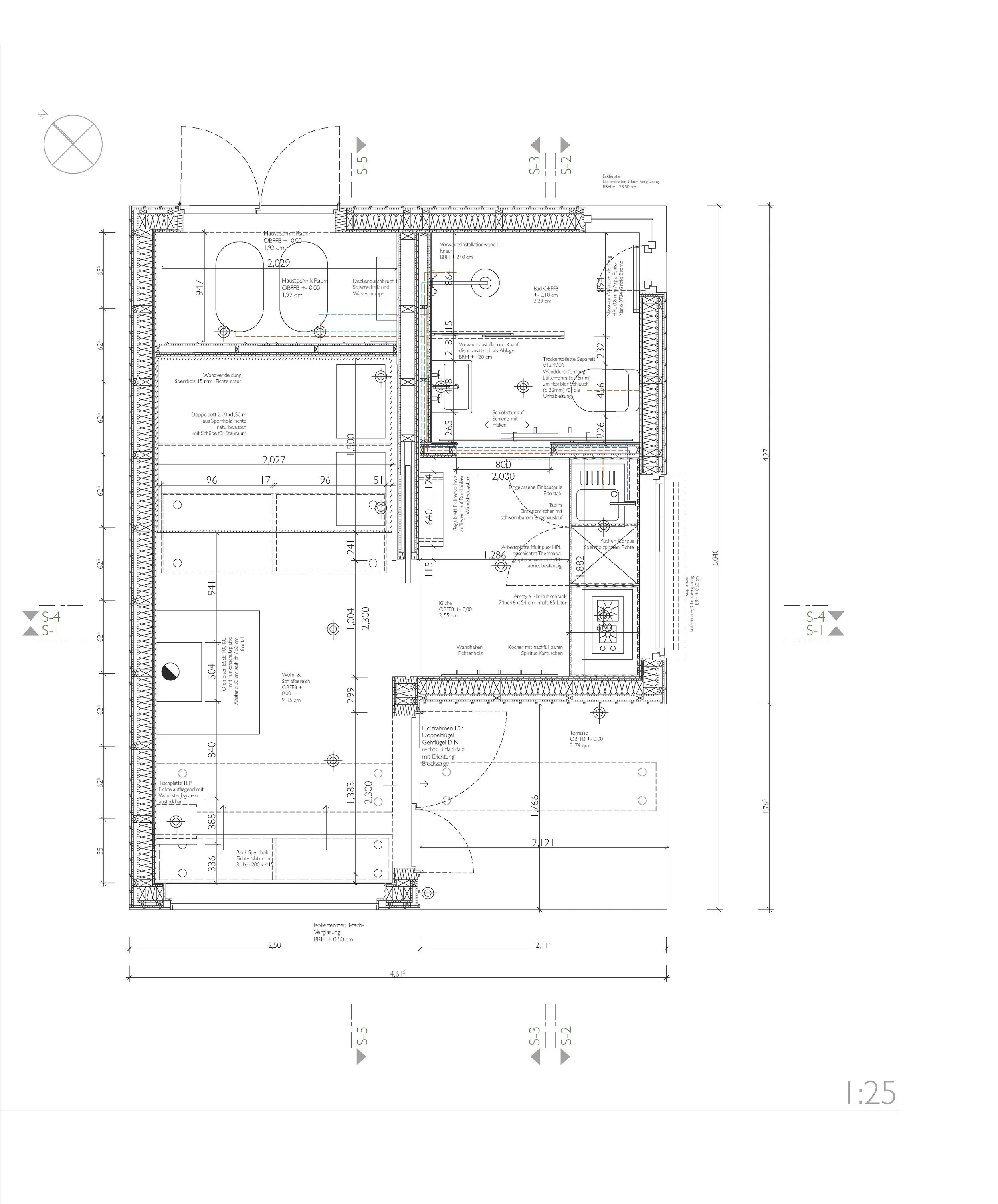
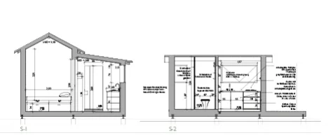
  • Cabin // timber-frame construction // resource-efficiently living

    // don’t call it tiny house // self-catering cottage

  • 27 qm

  • 6 month

  • solo work

 
Kurzportfolio Nina Mischke OKT 20176.jpg
 

Gesundschrumpfen / downsizing

A frugal lifestyle made itself felt in me and those around me. Since then I have had longings for simplicity, human needs, satisfaction, values, consumption, ethical and moral concepts of environmental awareness, time, pressure to perform, money and society and applied them to my design.

Take your time, become still, slow down, perceive more consciously, enjoy more, be offline, not be at the mercy of the daily struggle for availability. It's better to take off your smartphone, close your laptop, take your bike and ride into the nearby green. Ultimately, this work is a plea for conscious downsizing. For those who want to get away from the hustle and bustle. Let's start .....

 
 
 
 
im wald.jpg
 
 
BA JANINA MISCHKE %22 GESUNDSCHRUMPFEN%22 2017.07.13 ohne schnittmarken Uhr73.jpg
 
 

timber-frame construction

 
 
 
portfolio11.jpg