new work office @ Kaluza & Schmid

  • Architecture // Interior architecture // Office // urban garden // sustainable // building in existing structures

  • 6 - 8 month // freelance Interior architect

  • approx. 1 480 qm Agency block

  • approx. 3 700 qm storage & office block

  • construction planing // factory planning (CAD VectorWorks/Adobe Ai, Ps, iD, Keynote, )

  • weekly constructions site meetings

 
 
Screen Shot 2019-11-09 at 14.02.43.png
 
 
IMG_0313.JPG
 
 
 
 
 
IMG_2604.jpg

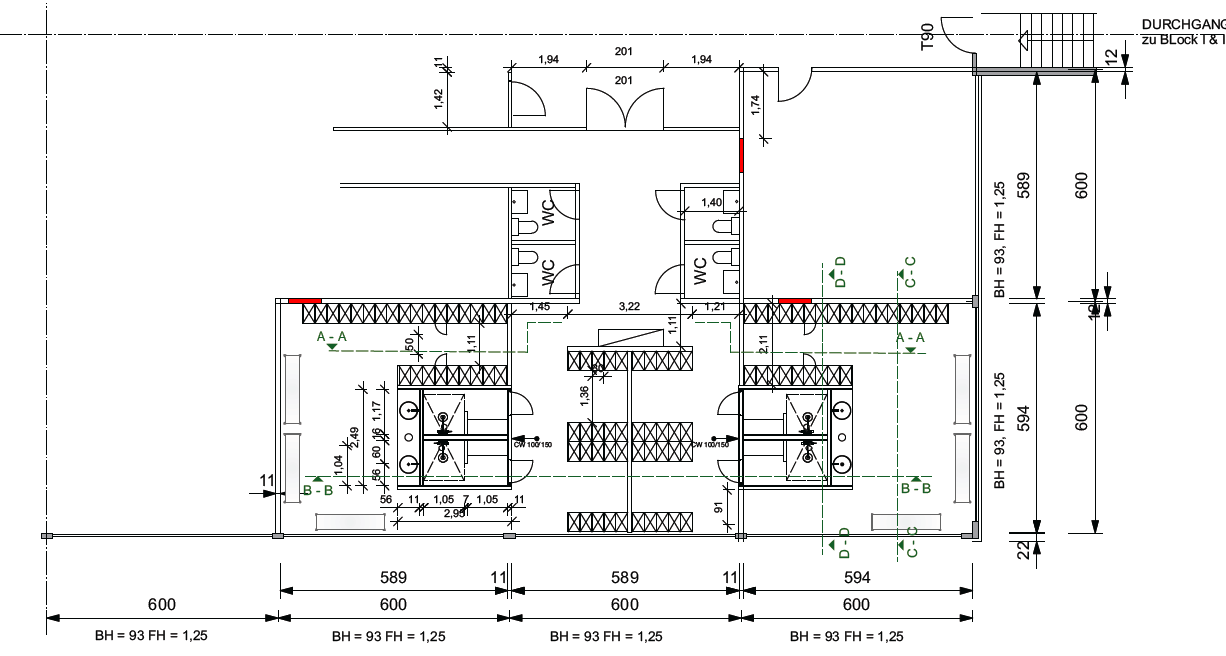
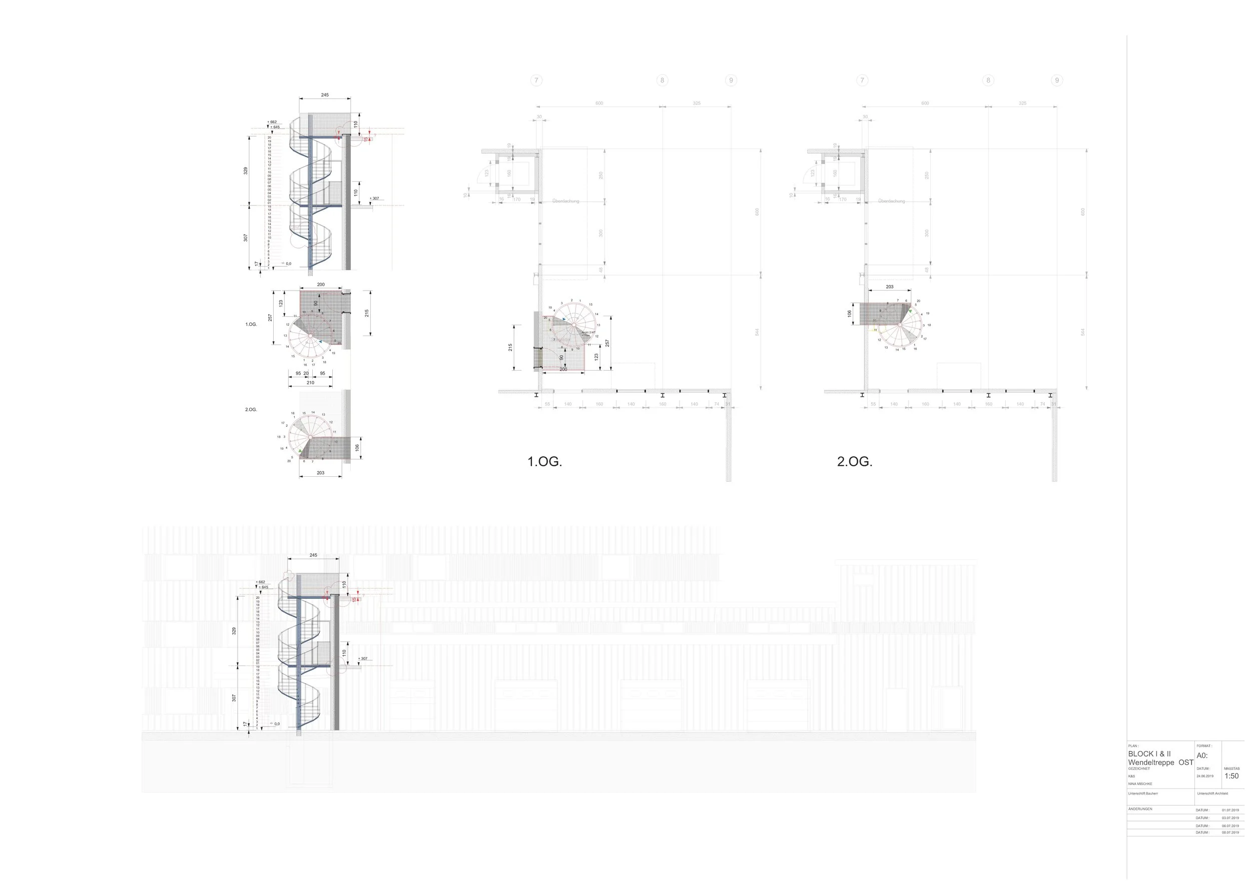
construction plan spiral staircase

 
 

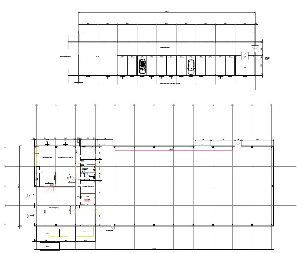
EG

 
 

Bildcredits: Kaluza&Schmidt

 
 

OG

 
 

Bildcredits: Kaluza&Schmidt

 
31C8D445-3D91-435E-9490-6351B7BC291C.JPG
IMG_0312.JPG
 
 
 
IMG_2597.JPG
 
IMG_2600.JPG

IN LOVE WITH FRUCHTROT

 

MEETINGBOX

Bildcredits: Kaluza&Schmidt

 

GENUG GRAU AM BAU

 
 
IMG_2564.jpg
IMG_1249.JPG
IMG_1213.jpg

Bildcredit: Kaluza&Schmidt

 
 

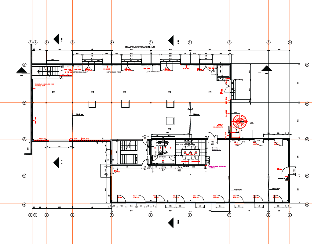
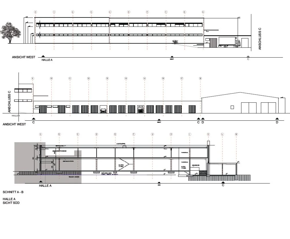
Gebäudeteil Halle A

 
 
Screen Shot 2019-11-09 at 21.09.28.png
 

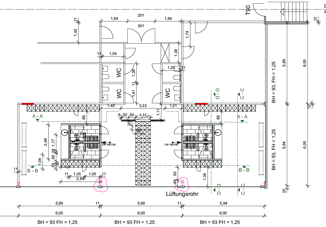
WellnessOase - showerbox

 
 
 
Screen Shot 2019-11-09 at 21.05.15.png
 
Screen Shot 2019-11-09 at 21.03.15.png
 
Screen Shot 2019-11-09 at 21.04.02.png
 
Screen Shot 2019-11-09 at 21.03.30.png